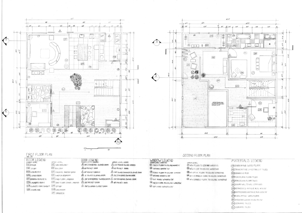
Design communication is communicating your work/ideas through orthographic, sectional, elevational, axonometric and plan views of sketches and professional drawings. These drawings should include the floorplan sizes, symbols, objects and material indications throughout the drawings.
The one-point and two-point perspective drawings do not have measurements, but display the orthogonal perspectives once the design is completed. This brings life to the viewer, and makes the room / building more life-like, as if imagining that they are in the scenery.
Here are my 2 store floorplans of (a) Gallery (b) loft.








